Casa di corte in vendita

Pasian Di Prato, Via Udine - Colloredo Di Prato
€ 120.000
4 locali 4 locali
228 Mq 228 Mq
1 bagno 1 bagno

Casa di corte in vendita

Pasian Di Prato, Via Udine - Colloredo Di Prato

Descrizione annuncio

Tecnocasa la più grande rete di intermediazione in Europa con 2807 punti vendita in Italia e 4022 nel mondo vi propone:

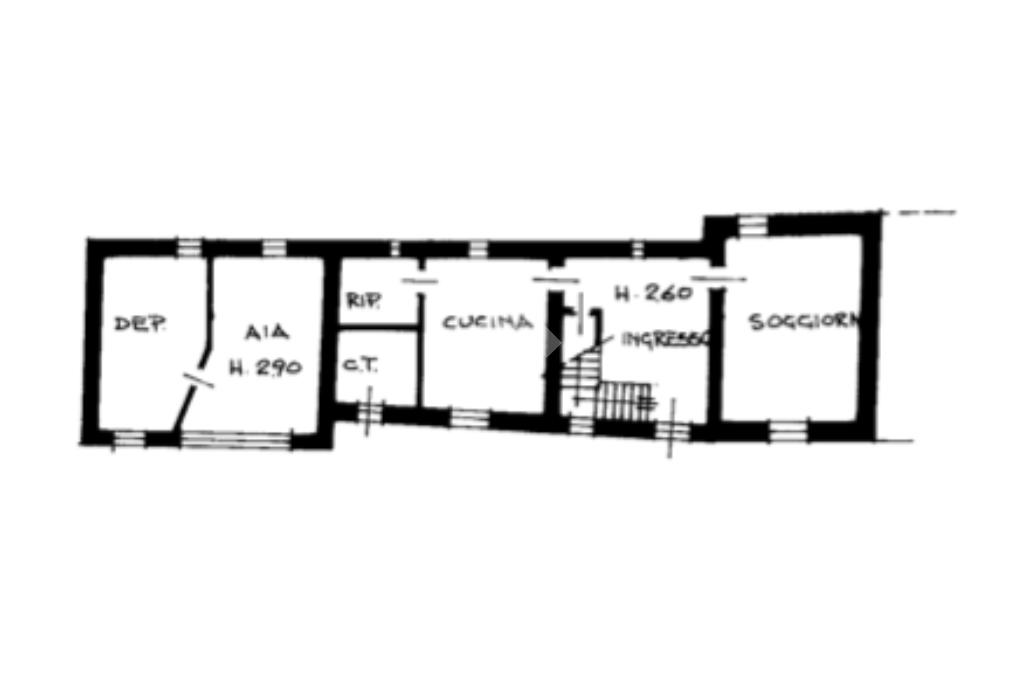
Casa semindipendente disposta su tre livelli, situata in una corte condivisa con una piccola abitazione, nella tranquilla Colloredo di Prato.

Al piano terra l’immobile si apre su un ampio ingresso, una cucina abitabile e stanza adiacente utilizzabile come dispensa o locale di servizio, un soggiorno e un sottoscala, utilizzato come ripostiglio.

Il piano primo ospita la zona notte composta da tre camere da letto, di cui due matrimoniali e una singola, oltre a un’ulteriore stanza versatile, perfetta come studio o area hobby. Completa il piano un bagno finestrato con vasca e accesso diretto alla terrazza.

Al piano superiore si trova un’ampia soffitta, accessibile tramite botola, utilizzabile come spazio di deposito.

La proprietà è completata da un ampio giardino e da un fienile al grezzo, che offre interessanti possibilità di recupero.

L’abitazione, attualmente abitata, nel corso degli anni ha beneficiato di interventi di manutenzione, pur necessitando oggi di lavori di ristrutturazione e ammodernamento. Il tetto è stato parzialmente rifatto negli anni ’90.

Soluzione con grande potenziale, ideale per chi desidera personalizzare gli spazi in un contesto di paese tranquillo.

Mostra tutto

Nelle vicinanze

Trasporto pubblico Trasporto pubblico
Colloredo di Prato:Cinque Martiri
Colloredo di Prato:Cinque Martiri
70 m
Colloredo di Prato:D'Antoni/Lazio
Colloredo di Prato:D'Antoni/Lazio
210 m
Scuole Scuole
Scuola Primaria Ippolito Nievo
420 m
Supermercati Supermercati
REurospesa (Unione Cooperativa Bressa)
2,1 Km
Negozi Negozi
Da Rico Abbigliamento
2,0 Km
Bar Bar
Da Rico
2,0 Km
Bar Cooperativa
2,1 Km
Marc
2,2 Km
Ristoranti Ristoranti
Da Rico
2,1 Km
Nono Primo
2,7 Km
Spqr Taverna Romana ed Osteria
2,8 Km
Mostra tutto

Caratteristiche

Rif.:
61158534
Piano:
1 di 3 (Piano su più livelli)
Posti auto:
1
Terrazzi:
1
Camere da letto:
3
Arredamento:
Assente
Mostra tutto
Prezzo Prezzo
€ 120.000
Rata mutuo Rata mutuo
€ 565 / mese
Spese annue Spese annue
€ 0
Proponi il tuo prezzoProponi il tuo prezzo

Classe Energetica

Questo immobile è esente da classe energetica
Anno di costruzione:
1950
Riscaldamento:
Autonomo
Tipo impianto:
A stufa
Tipo alimentazione:
Metano

Ti interessa visionare l'immobile?

Fissa un appuntamento  Fissa un appuntamento

Richiedi informazioni

Clicca su Leggi per aprire l'informativa
* Questi campi sono obbligatori

Calcola il tuo mutuo

Semplice e senza impegno
Anticipo

( % )
Mutuo

( % )

pochi semplici passi

inserisci i tuoi dati
Questionario completato
Grazie per aver richiesto un appuntamento senza impegno con un nostro Consulente del Credito e Assicurativo.

Hai inserito correttamente tutti i dati necessari e a breve riceverai una e-mail con un link da convalidare per inviare i tuoi dati.
Affiliato
Ud Ovest Srl
P.zza Matteotti, 21 33037 Pasian Di Prato (UD)

Il nostro staff


  • Shaka Balladino
    Collaboratore

  • Giacomo Colautto
    Collaboratore

  • Domeniko Dedushaj
    Affiliato

  • Eliana Dedushaj
    Coordinatrice

  • Dajana Jablanovic
    Collaboratrice

  • Gianluca Londero
    Collaboratore
P.zza Matteotti, 21 33037 Pasian Di Prato (UD)
Zona: Pasian di Prato - Martignacco
Mostra su mappa
Orari: Dal lunedì al venerdì dalle 9.00 alle 13.00 e dalle 15.00 alle 19.30 sabato dalle 9.30 alle 13.00 Cellulare : 3389868329
Affiliato
Ud Ovest Srl
P.zza Matteotti, 21 33037 Pasian Di Prato (UD)

2026 Tecnocasa Franchising S.p.A. - P. IVA 08365160152 - Via Monte Bianco 60/A 20089 Rozzano (MI). Ogni agenzia ha un proprio titolare ed è autonoma. Privacy policy | Policy utilizzo | Cookie policy